PRODUKTSPECIFIKATIONER:
Stål
Stål
2 kg.
Box 1: 5,0 x 5,0 x 30,0 cm.
PRODUKTINFO:
- Lätt att montera utan att använda verktyg
- Galvaniserat stål 2 mm
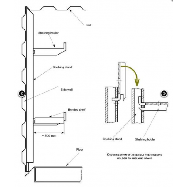
- Hyllfästet sätts i rännorna på hyllställen
- Minsta avstånd mellan hyllor är 300 mm
- Max. vikt per fäste: 30 kg
- Endast kompatibel med containrarna i Orion-serien
Hyllfästena är en del av vårt hyllsystem för våra förråds- och miljövänliga förrådscontainrar. Systemet omfattar hyllställ, hyllfästen och bundna hyllor i olika längder.
Hyllfästet är tillverkat av 2 mm tjockt galvaniserat stål och kan monteras i rännorna på hyllställen utan verktyg.
